mendiko etxea

Projet de maison individuelle à Ascain, architecture intégrée au paysage du Pays basque
Maison individuelle à Ascain avec vue sur la Rhune, architecture contemporaine en terrain pentu

Lieu : Ascain, Pays basque
Programme : Construction d’une maison individuelle
Maîtrise d’ouvrage : Investisseur privé
Statut : Permis en cours d’instruction
Type d’intervention : Construction neuve
Architecte : Atelier Ondra
Mission : Dépôt de Permis
Partenaires : Pierre Rey (BET thermique)

Implantée à Ascain, sur les pentes du mont Esnaur, cette maison individuelle bénéficie d’une vue dégagée sur la Rhune et la baie. Le projet s’inscrit dans un site fortement pentu, nécessitant une attention particulière portée à l’implantation et à l’adaptation du bâti à la topographie.

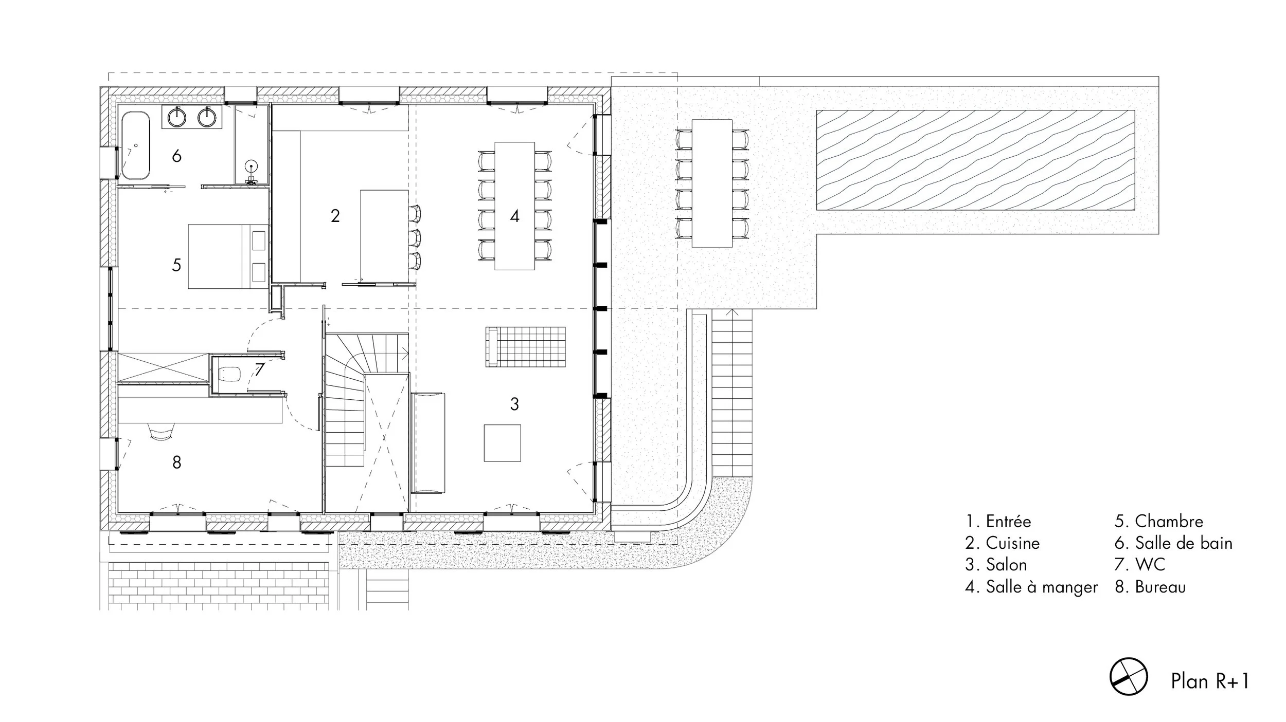
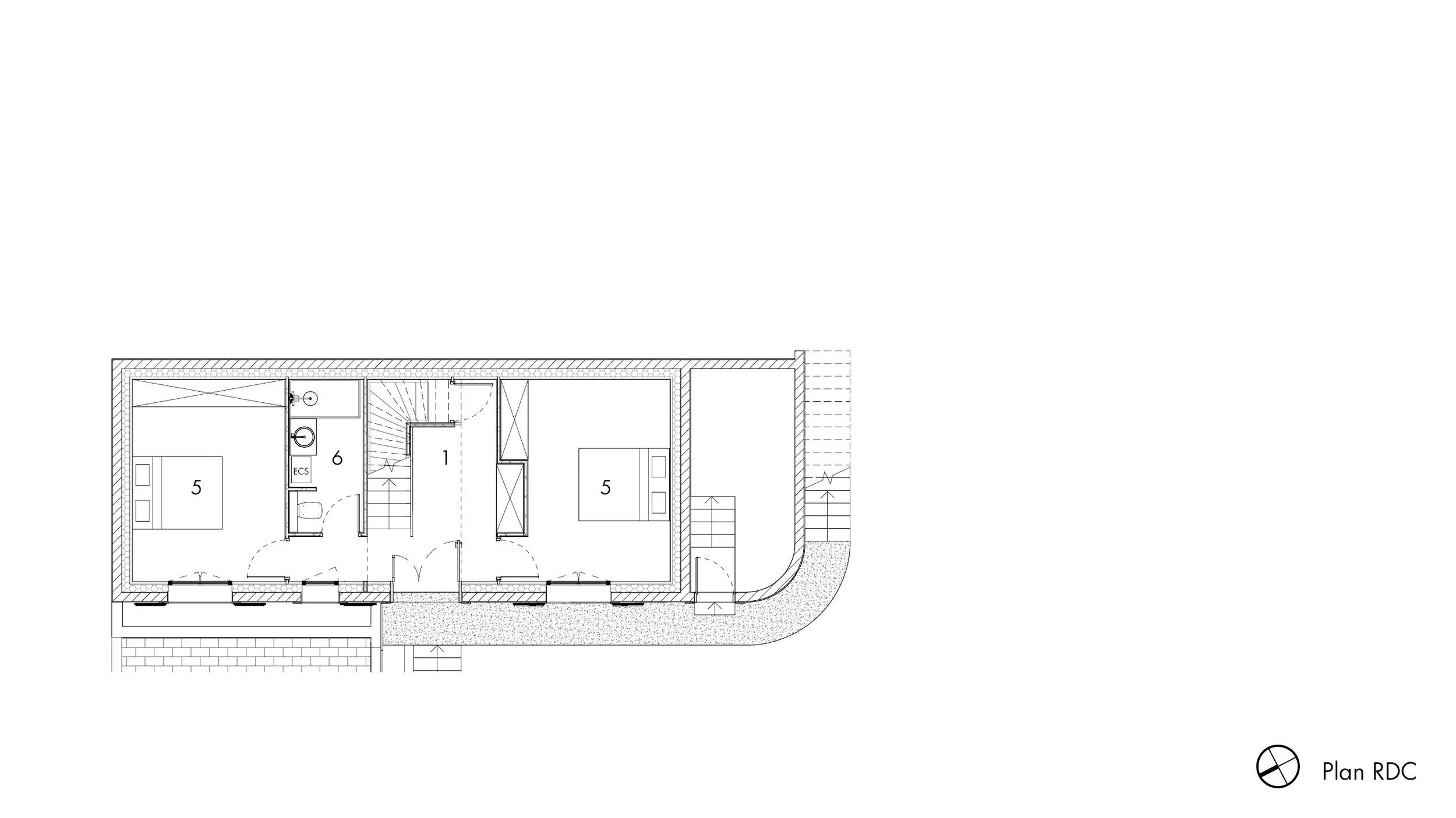
L’organisation de la maison répond directement à cette contrainte : les espaces nuit sont situés au rez-de-chaussée, tandis que les espaces de vie se développent à l’étage, au niveau haut de la parcelle, afin de profiter pleinement des vues et de la lumière naturelle.

En lien avec les prescriptions de l’Architecte des Bâtiments de France, la maison est implantée au plus proche de l’accès. Le garage est intégré en sous-sol, permettant de limiter l’impact du projet sur le terrain, de réduire les aménagements extérieurs et de préserver les espaces naturels existants.

Le projet s’inspire des maisons labourdines traditionnelles, tout en proposant une écriture architecturale contemporaine. L’organisation intérieure reprend le principe de l’eskaratz, pièce centrale distribuant les autres espaces. Les façades associent un pignon travaillé, des ouvertures tramées et l’usage de la pierre locale en soubassement et en encadrement des baies, en contraste avec l’enduit blanc. L’ensemble cherche à valoriser les matériaux et les savoir-faire locaux, dans une approche sobre et attentive au site.

Précédent
Précédent

delgue

Suivant
Suivant

La crèmerie