delgue

Vue extérieure du projet Delgue – architecture et insertion dans le site
Vue intérieure du projet Delgue à Saint-Jean-de-Luz - ambiance et matérialité

Lieu : Saint-Jean-de-Luz, Pays basque
Programme : Construction neuve
Maîtrise d’ouvrage : Particulier
Statut : Permis délivré
Type d’intervention : Construction neuve
Architecte : Atelier Ondra
Mission : Complète
Partenaires : BET Cazeaux, Optisol 64, Enerco2

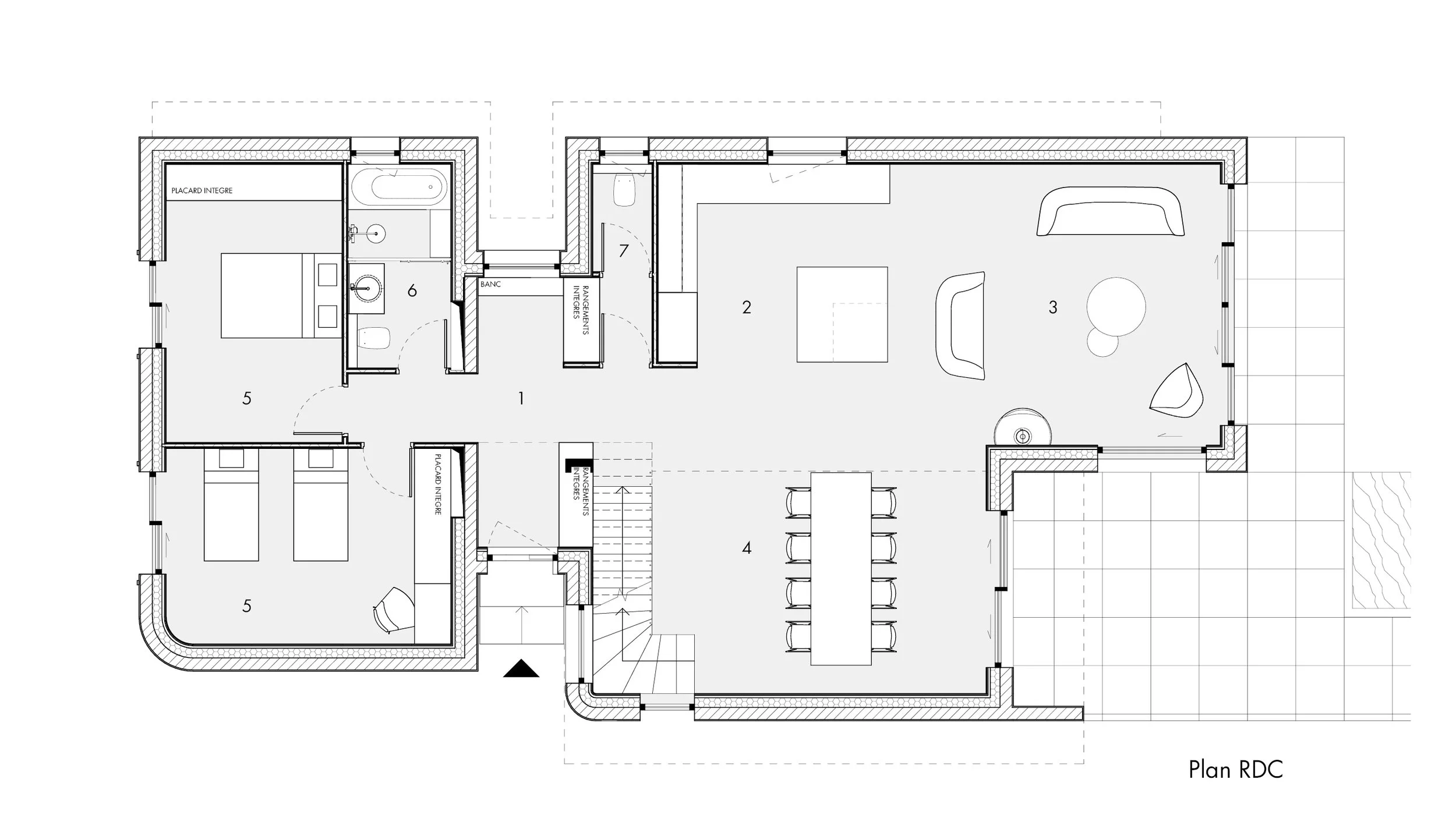
Pensée pour un couple souhaitant une maison alliant codes architecturaux basques traditionnels et écriture contemporaine, cette maison est située dans le quartier Errepira, à Saint-Jean-de-Luz. Le projet s’inscrit dans un contexte résidentiel contraint, nécessitant une attention particulière portée à l’implantation et aux usages.

La parcelle étroite a conduit à orienter les espaces de vie côté jardin, bénéficiant de la meilleure orientation et des vues les plus ouvertes. Le projet cherche à préserver des espaces extérieurs libres autour de la construction, en optimisant l’emprise au sol afin de conserver un maximum de surfaces plantées.

L’entrée est positionnée sur une façade latérale, permettant de limiter les surfaces de circulation intérieure et de privilégier des espaces de vie plus qualitatifs. Cette organisation contribue à une lecture claire du plan et à une utilisation rationnelle de la surface construite.

L’aile située côté rue, destinée à accueillir ponctuellement la famille, est conçue comme un volume additionnel. Elle s’inscrit dans une logique d’extension mesurée, distincte des espaces de vie principaux, tout en dialoguant avec l’ensemble de la maison.

Précédent
Précédent

arotz tailerra

Suivant
Suivant

mendiko Etxea