ideien etxea

Lieu : Montpon ménestérol, Dordogne
Programme : Réhabilitation d’une grange pour l’extension d’une maison individuelle
Maîtrise d’ouvrage : Particulier
Statut : Chantier en cours
Type d’intervention : Réhabilitation
Architecte : Atelier Ondra
Mission : Etudes complètes
Partenaires : Optisol 24

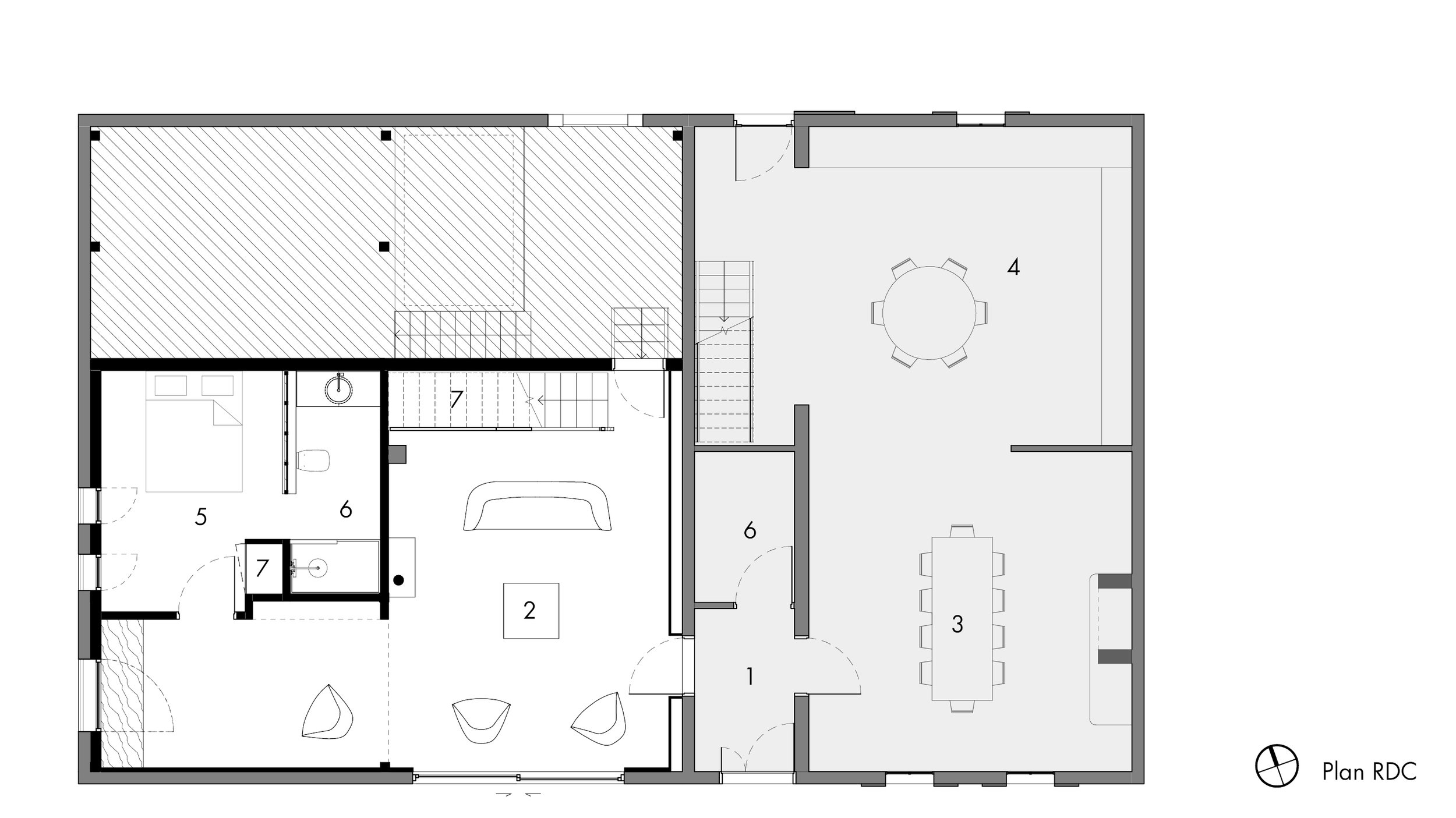
Premier permis de construire déposé par l’Atelier Ondra, ce projet constitue une étape fondatrice dans le développement de la pratique de l’agence. Il porte sur la rénovation d’une grange existante, transformée et étendue afin d’accompagner l’évolution d’une maison existante.

Le programme architectural répond à la volonté des clients d’agrandir et de diversifier les espaces de vie. Le projet intègre la création d’un séjour plus spacieux, d’un atelier, d’une bibliothèque, d’un bureau ainsi que de deux chambres supplémentaires. Une attention particulière a été portée à la liaison entre les différents espaces, afin de garantir une organisation fluide et cohérente entre l’existant et l’extension.

La phase de conception a été pensée comme un véritable laboratoire de rénovation du bâti ancien, associant réflexion architecturale, performance énergétique et choix constructifs. Le projet met en œuvre des solutions sobres et durables, visant une rénovation énergétique efficace, adaptée aux caractéristiques du bâti existant.

Les choix constructifs privilégient des matériaux locaux et biosourcés : isolation et chape en chaux-chanvre, plancher intermédiaire en structure bois, usage de la pierre existante et mise en place d’un poêle associé à un mur en briques, permettant d’améliorer l’inertie thermique du bâtiment. Ces dispositifs participent à la réduction des consommations énergétiques tout en améliorant le confort d’usage.

Le projet a été réalisé en autoconstruction, impliquant un travail étroit entre conception architecturale et mise en œuvre, et renforçant la compréhension fine des matériaux, des techniques et des contraintes du chantier.

Précédent
Précédent

iduski