Maison D.EV

Agence : Atelier Ondra
Mission complète
Programme : rénovation d’une grange en milieu rural
Année : 2022 – en cours
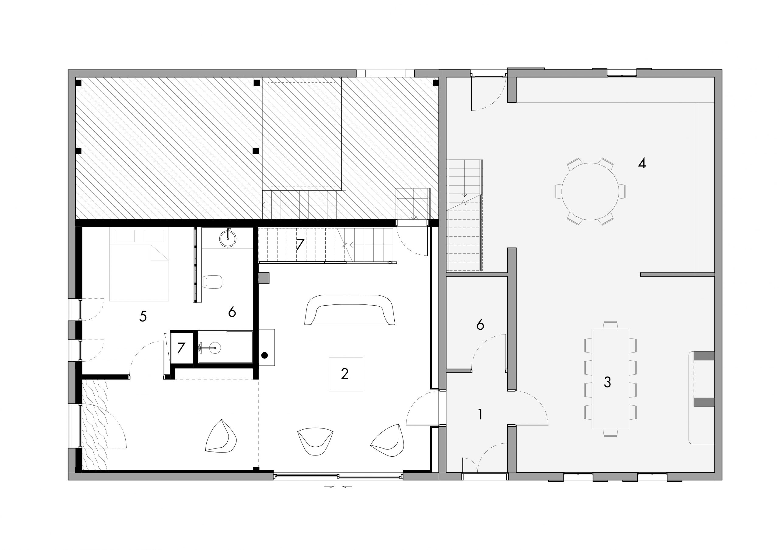
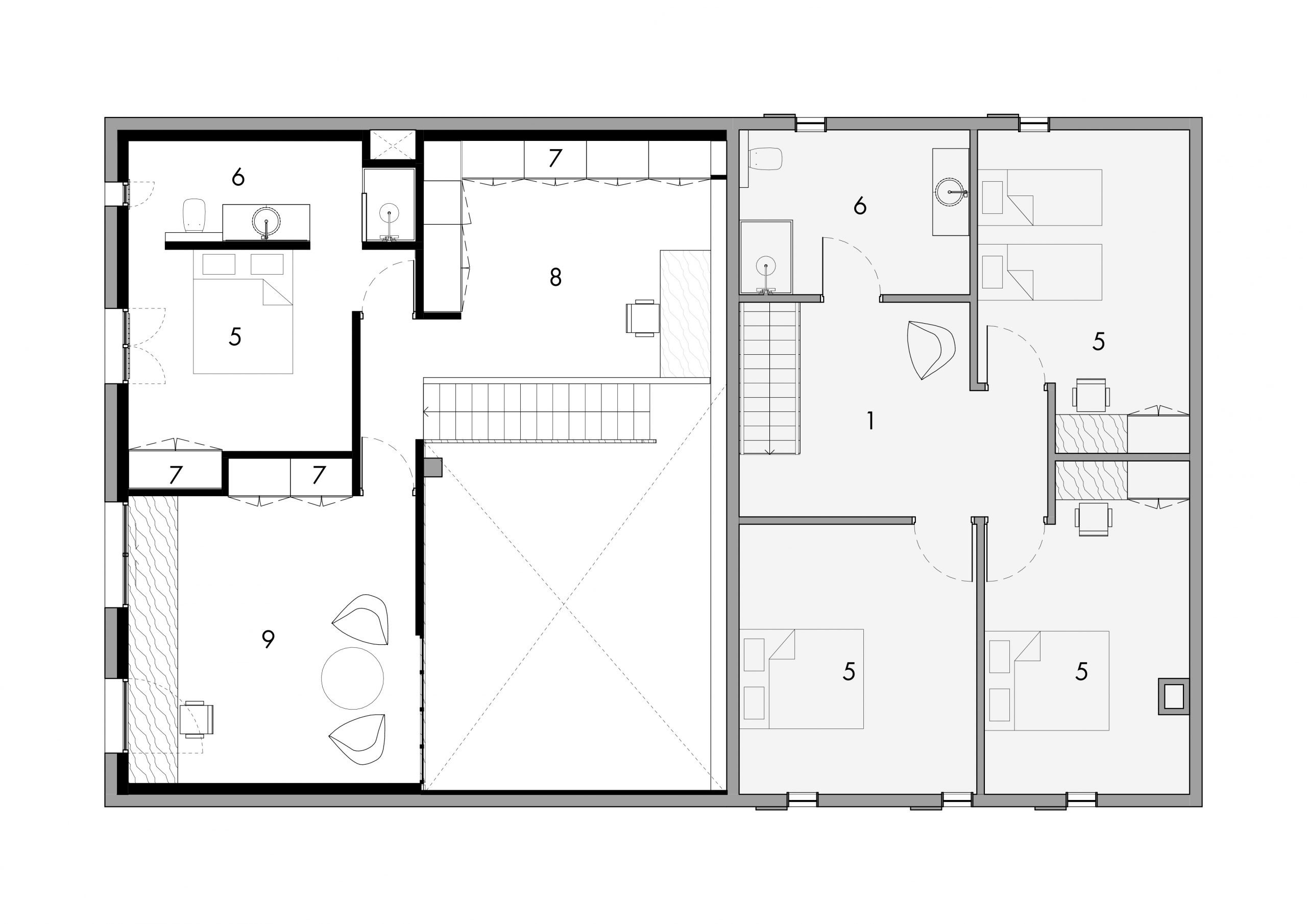
Premier permis de construire déposé par l’Atelier Ondra, ce projet fait figure de proue pour développer les ambitions architecturales de l’agence. Il s’agit de l’extension d’une maison existante, à laquelle les clients ont souhaité ajouter différentes pièces : un séjour plus spacieux, un atelier, une bibliothèque, un bureau, ainsi que deux chambres. Le programme et la liaison entre chaque espace a été étudié avec attention. La phase de développement du projet a permis d’établir un véritable laboratoire de la rénovation du bâti ancien, de l’emploi de matériaux biosourcés et de la rénovation énergétique efficace, c’est-à-dire sobre en consommation d’énergie.



